Copyright © 2019 Ottolia & Barnes Architecture. All rights reserved.

Seik Tara Village K-9th School

Rakhine State, Burma (Myanmar)

 

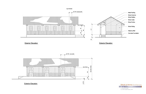
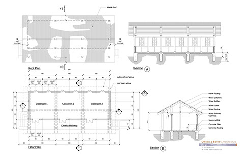
Ottolia & Barnes provided design services to Within Arms Reach who partnered with Myanmar Charity Group to build an addition to a school for the children in Rakhine State in Burma (Myanmar). The school is located in Seik Tara Village, in northern Rakhine State of Burma (Myanmar). The occupation of the northern Rakhine State communities consists of a mix of farming, livestock rearing, fishing, off-farm activities and casual labor.  The total population of this village is 2,900 people.

 

The existing school provides educational services for approximately 600 students at the K – 9th grade levels.  The basic education primary school was built in 1962.  After the 2010 flood the classrooms and furniture were heavily damaged.  They needed an immediate classroom space for 7, 8, and 9th graders.