Copyright © 2019 Ottolia & Barnes Architecture. All rights reserved.

Seventh Day Adventist Church

Rancho Palos Verdes, CA

 

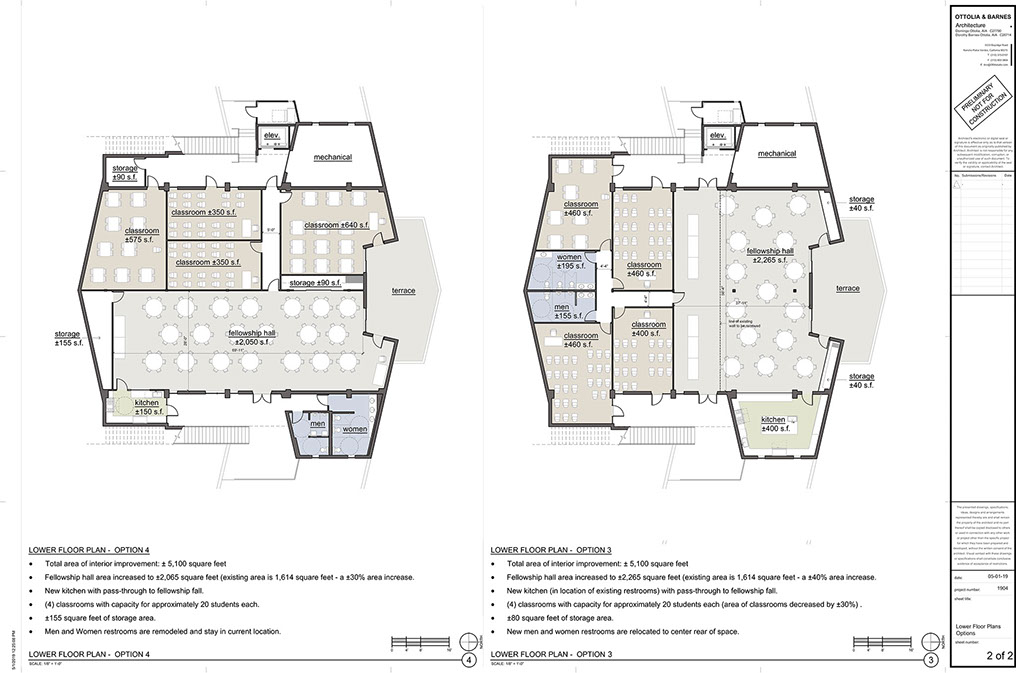
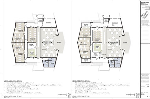
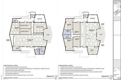
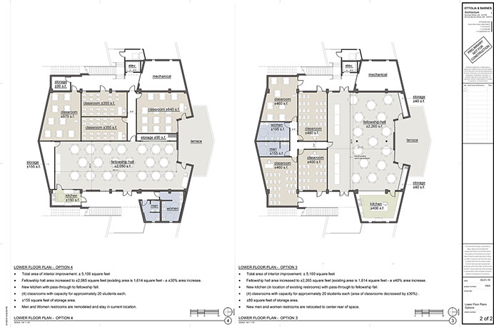
Scope of work:  Renovate lower level with classrooms, restrooms, fellowship hall and kitchen.