Copyright © 2019 Ottolia & Barnes Architecture. All rights reserved.

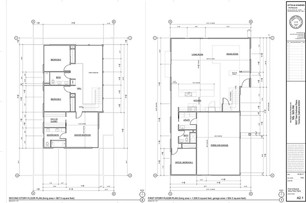
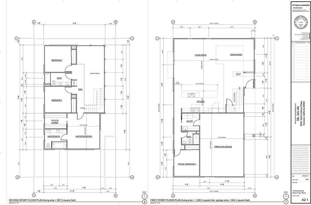
Torrance Residence

Torrance, CA

 

Scope of work:  New 2,000 single family residence.

 

General Contractor: Arias General Construction, Inc.